Rendez-vous découverte
Un moment d’échange en toute simplicité pour faire connaissance, comprendre votre mode de vie, vos envies et vos besoins. Ce premier rendez-vous est l’occasion de poser les bases de votre projet, de répondre à vos questions et de vous proposer des premières idées personnalisées.

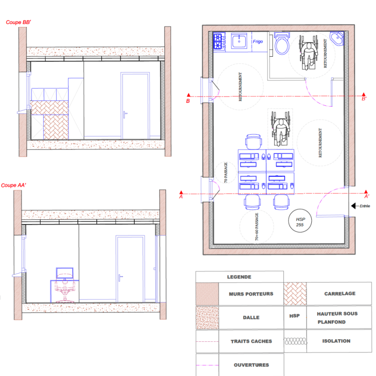
Conception - plans 2D
Pour concrétiser votre projet en toute sérénité, je réalise des plans techniques clairs et détaillés à destination des artisans et professionnels. Ces plans 2D permettent une exécution précise et évitent les mauvaises surprises pendant les travaux.
